Aeroporto Regional das Hortênsias
PROJETO
Desenvolvimento de anteprojeto arquitetônico de um aeroporto de porte médio.
LOCAL
A área da intervenção está localizada na cidade de Canela - RS.
![]() |
| Implantação |
![]() |
| Pavimento Térreo |
![]() |
| Segundo Pavimento |
![]() |
| Fachadas |
![]() |
| Cortes |
![]() |
| Corte Perspectivado |
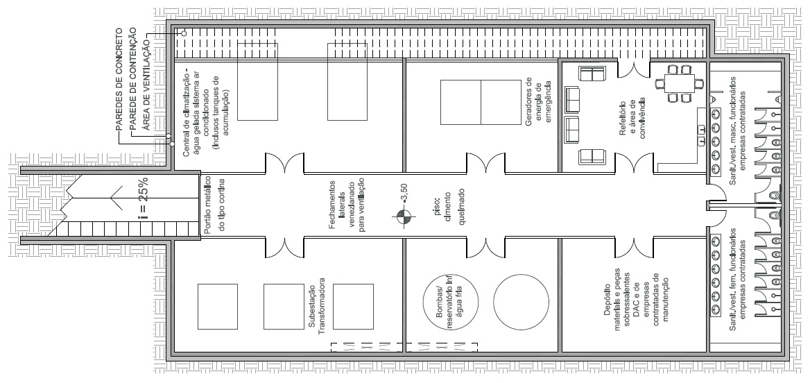
![]() |
| Pavimento Técnico - CUT - Subsolo |
Esquema Estrutural da Cobertura | Treliças de Aço Galvanizado
Maquete
Disciplina ministrada pelos professores e arquitetos Betina Martau, Luís Macchi e Sérgio Marques.
Disciplina ministrada pelos professores e arquitetos Betina Martau, Luís Macchi e Sérgio Marques.


















Nenhum comentário:
Postar um comentário
- Os comentários do blog são moderados e serão liberados após constatação de que estão de acordo com o assunto do post.
- A forma mais simples e rápida é comentar como "anônimo", porém se escolher essa opção favor identificar-se no final do comentário.
- Os comentários não refletem a opinião do autor do blog.
- Abraço a todos que passarem por aqui.